Kapitalanlage mit Potenzial: Mehrfamilienhaus mit 5 Wohnungen in Mönchengladbach City nahe Abteiberg
Objektart
Adresse
Objektdaten
Informationen
Ausstattung
Details
Dieses solide Mehrfamilienhaus mit fünf vermieteten Wohneinheiten befindet sich in zentraler Lage der Mönchengladbacher Altstadt, nur wenige Schritte vom Abteiberg und Alter Markt entfernt - eine ideale Kapitalanlage mit Potenzial.
Die aktuellen Nettokaltmieten betragen insgesamt 2.030 EUR pro Monat bzw. 24.360 EUR pro Jahr und bieten künftig weiteres Steigerungspotenzial.
Die beiden Erdgeschosswohnungen verfügen jeweils über eine eigene Terrasse, während die kürzlich renovierte Dachgeschosswohnung mit einer uneinsehbaren Dachterrasse ausgestattet ist.
Beheizt werden vier der fünf Wohnungen über ältere Nachtspeicheröfen. Ein Nachtspeicherofen würde kürzlich durch einen modernen Infrarot-Heizkörper ersetzt, was kostengünstig und ohne größere Umbauten möglich ist. Die Dachgeschosswohnung wurde bereits auf eine Gas-Etagenheizung umgestellt. Das Haupthaus ist vollständig unterkellert (Gewölbekeller).
Aus Diskretionsgründen veröffentlichen wir nur eine kleine Auswahl an Innenfotos der vermieteten Wohnungen im Internet. Für weitere Einblicke zu den Wohnungen senden wir Ihnen gerne nach Registrierung das Exposé mit Objektanschrift und weiteren Innenaufnahmen.
Fazit:
Dieses solide Renditeobjekt in der Mönchengladbacher Altstadt bietet eine attraktive Investitionsmöglichkeit mit einer guten Rendite und einem geringen Leerstandsrisiko.
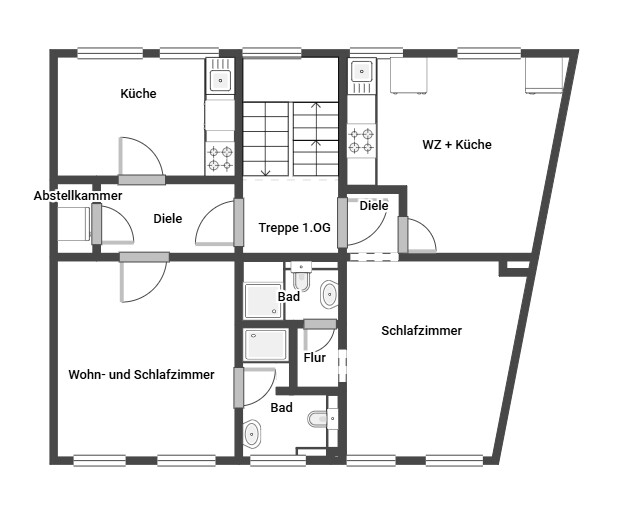
Aufteilung der Wohnflächen:
Erdgeschoss links, ca. 45 m², vermietet
Wohnzimmer, Schlafzimmer, Diele, Flur, Küche, Badezimmer, Terrasse
Erdgeschoss rechts, ca. 45 m², vermietet
Diele, Wohnzimmer, Schlafzimmer, Küche, Badezimmer, Terrasse
Obergeschoss links, ca. 35 m², vermietet
Flur, Schlafzimmer, Wohnzimmer mit offener Küche, Badezimmer
Obergeschoss rechts, ca. 35 m², vermietet
Flur, Schlafzimmer, Wohnzimmer mit offener Küche, Badezimmer
Dachgeschoss, ca. 60 m², vermietet
Wohnzimmer mit Ausgang zur Dachterrasse, offene Küche, Schlafzimmer, Badezimmer
Dieses solide Mehrfamilienhaus befindet sich im Herzen von Mönchengladbach, einer aufstrebenden Stadt im Westen Deutschlands, die durch ihre hervorragende Infrastruktur besticht. Die Lage des Objekts bietet eine perfekte Balance zwischen urbanem Leben und erholsamer Umgebung. Die Nachbarschaft zeichnet sich durch eine gut entwickelte Infrastruktur aus, weshalb Schulen, Ärzte sowie Einkaufsmöglichkeiten des täglichen Bedarfs ideal zu erreichen sind.
Dank der ausgezeichneten Anbindung an den öffentlichen Nahverkehr und die nahegelegene Autobahn sind die umliegenden Städte schnell und unkompliziert erreichbar. Zudem lädt die Vielzahl an Parks und Grünflächen in der Umgebung zu entspannten Spaziergängen und Freizeitaktivitäten im Freien ein.
Es liegt ein Energiebedarfsausweis vor.
Dieser ist gültig bis 18.3.2035.
Endenergiebedarf beträgt 207.80 kwh/(m²*a).
Wesentlicher Energieträger der Heizung ist Elektro.
Das Baujahr des Objekts lt. Energieausweis ist 1938.
Die Energieeffizienzklasse ist G.
Wir bitten um Verständnis, dass wir weitergehende Auskünfte zum angebotenen Objekt nur nach Nennung Ihrer vollständigen und korrekten Kontaktdaten (Vorname, Name, Straße inklusive Hausnummer, Ort mit Postleitzahl, Telefonnummer sowie gültige E-Mail-Adresse) erteilen können.
Alle Angaben sind frei bleibend, unverbindlich, ohne Gewähr und basieren ausschließlich auf Informationen, die uns von unserem Auftraggeber mitgeteilt wurden. Wir übernehmen keine Gewähr für Vollständigkeit, Richtigkeit und Aktualität. Zwischenvermittlung bleibt vorbehalten. Wir weisen Sie darauf hin, dass unsere Tätigkeit im Erfolgsfall eine Vermittlungs- und oder Nachweisprovision nach sich zieht. Beim Kauf beträgt die Provision 3,57 % inkl. MwSt. des notariell beurkundeten Kaufpreises.
Ihr persönlicher Ansprechpartner:
Ingo Schwarz
SCHWARZ Immobilien
Immobilienmakler (IHK)
DEKRA zertifizierter Sachverständiger Immobilienbewertung (D1)
Telefon: 02162 / 919888-1
ingo.schwarz@schwarz-immo24.de
Ansprechpartner
Telefax: 004921629198889
ingo.schwarz@schwarz-immo24.de
Für meine Kunden auch am Wochenende erreichbar!
Energieausweis (Bedarfsausweis)
207,80 kWh / (m²*a) Endenergiebedarf
207,80 kWh / (m²*a) Endenergiebedarf
207,80 kWh / (m²*a) Endenergiebedarf
Weitere Informationen
| Wesentlicher Energieträger | ELEKTRO |
| Energieausweis gültig bis | 2035-03-18 |
| Energieausweis Jahrgang | ab dem 1.5.2014 |
| Energieausweis Werteklasse | G |
| Energieausweis Baujahr | 1938 |
| Energieausweis Gebäudeart | Wohngebäude |
| Heizung | Etagenheizung |
| Befeuerung | Gas, Elektro |
Ich bin damit einverstanden, dass mir Karten von Google angezeigt werden. Es gelten die Datenschutzbedingungen von Google (https://policies.google.com/privacy).
Ich bin einverstanden